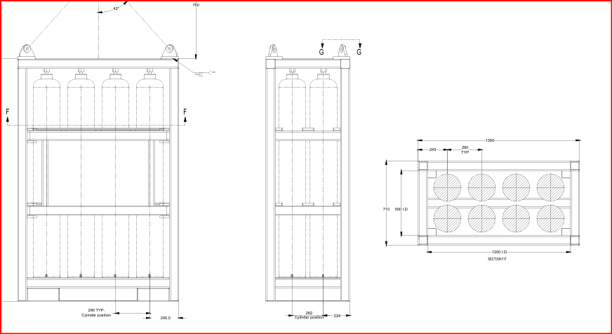
Design, Detailing and Analysis of Racks for storage of offshore Cylinders with breathing gases, the design was done for 1, 4 and 8 cylinders in compliance with DNV 2.7.1 standards including Analysis to ascertain the safety of racks/containers at usage

